PROJECT DESCRIPTION
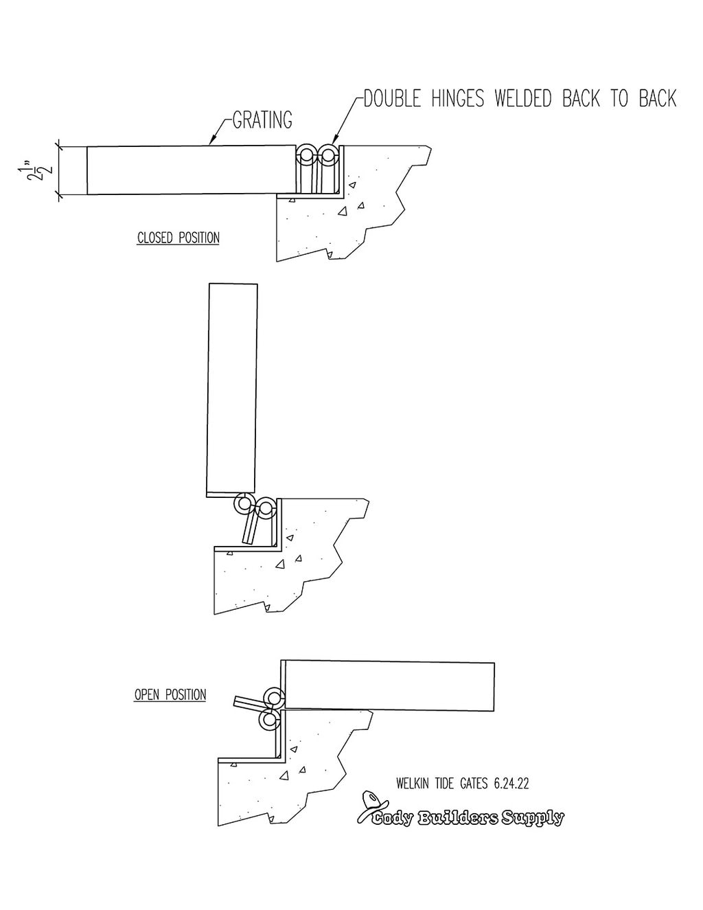
These are heavy duty gratings that need to handle trucks driving over them. The segments of grating are hard to lift, so they had to be as small as practicable. A design was needed that would allow the grating to lay flat on the asphalt when it was opened so that it wouldn’t be tipped up where it could fall on you.
We proposed different options and ended up going with the double hinge which solved the problem!
PROJECT GALLERY
- Click to Enlarge
PROJECT GALLERY
- Tap to Enlarge