PROJECT DESCRIPTION
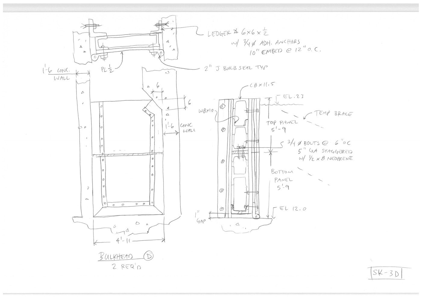
Heart surgery for a water treatment plant was needed. The customer needed to block off certain water channels in a specific sequence in order to replace equipment in the plant. We developed a strategy and designs for the bulkhead gates needed.
PROJECT GALLERY
- Click to Enlarge
PROJECT GALLERY
- Tap to Enlarge