PROJECT DESCRIPTION
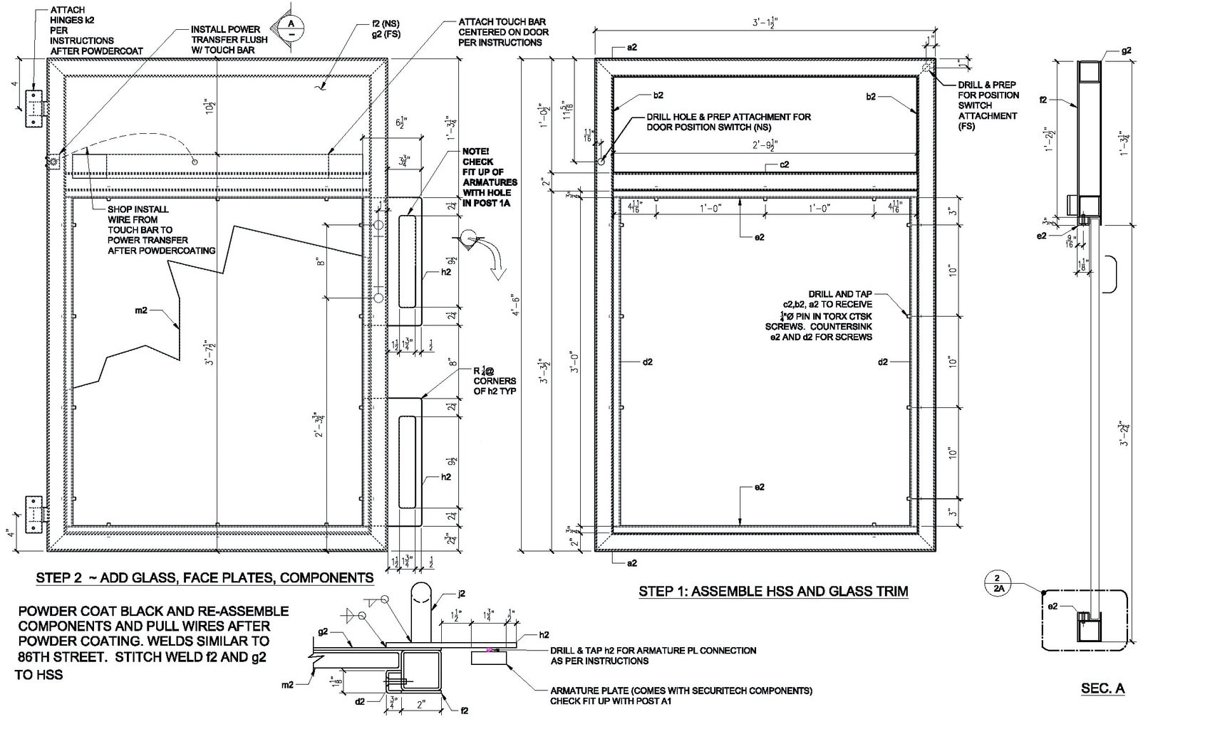
When we were working on the 86th Street 2nd Avenue subway station we embraced the challenge of creating intricate fare array gates. These have to be operated from the agent booth for automatically opening gates for the disabled. They require separate key switches for fire department and police department, and magnetic locks. At the time we started this the MTA was phasing over from surface mounted gate components to flush mounted (recessed) components. We found that electrical wiring and connections could not be done in the field in some cases as they would be buried inside the door and its posts! Further compounding this was the critical deadline to finally get the 2nd Avenue line OPEN after literally 100 years in the making! We found that we had to minutely figure out these details in order to make sure we were not passing on a problem to the electricians who would follow behind us.
PROJECT GALLERY
- Click to Enlarge
PROJECT GALLERY
- Tap to Enlarge