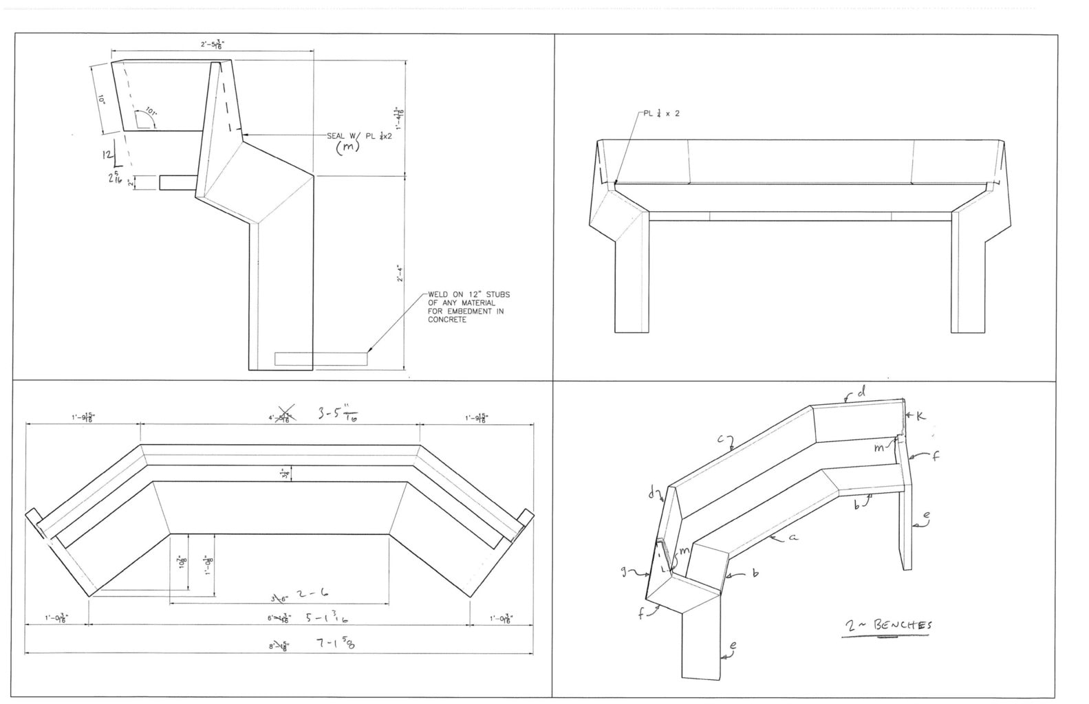
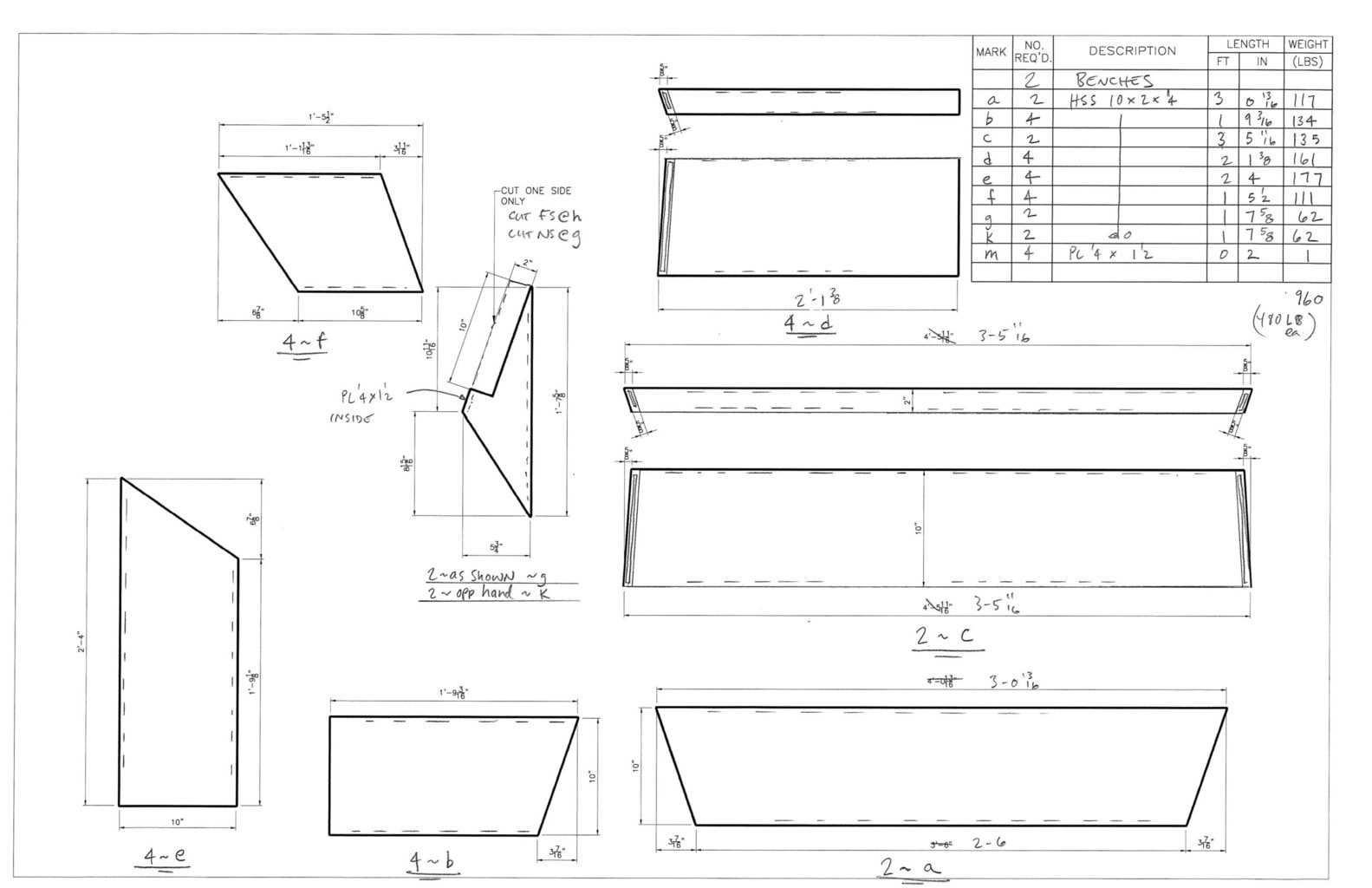
PROJECT DESCRIPTION
A local Texas elementary school threw us the challenge of creating the “buddy bench” where a kid who’s lonely can sit down. When the lonely kid sits there, someone is supposed to come and sit next to him and give him some company. I’ve heard that it works!
Economy was the key factor, and we happened to have a particular oddball size of HSS left over from another job that we could make the bench. Feel free to use this idea if you want to make more!
PROJECT GALLERY
- Click to Enlarge
PROJECT GALLERY
- Tap to Enlarge